Gemeinde Obermettingen - Baugebiet Gehren II

Um bauwilligen Interessenten das Bauen in Obermettingen zu ermöglichen, entschloss sich die Gemeinde Ühlingen-Birkendorf das oben genannte Baugebiet für die Bebauung zu erschließen. Die Erarbeitung der erforderlichen Genehmigungs- u. Bauplanung für dieses Bauprojekt wurde der Hardy Gutmann GmbH, Gesellschaft für Planung und Bauüberwachung in Auftrag gegeben.
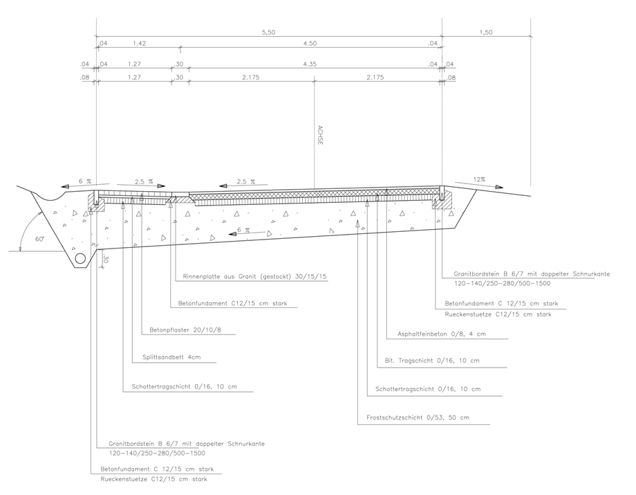
Das Erschließungsgebiet liegt von der K 6505 kommend auf der rechten Seite zu Beginn des Ortes Obermettingen, anschließend an das Baugebiet Gehren Nord. Die Erschließung wird vom Baugebiet Gehren Nord in fast gleicher Ausbauform (mit kleinen Ausnahmen, s. a. Bautechnische Details und Regelquerschnitt) fortgeführt bis hin zum querenden Friedhofweg. Dort wird ein beidseitiger Wendehammer mit einem Durchmesser von 16m ausgebildet, um einen Anschluss zum Friedhof hin zu gewährleisten; dieser ist jedoch nicht für den alltäglichen Erschließungsverkehr gedacht, denn der Friedhofweg zur Kreisstraße hin wird nicht ausgebaut D.h. der bestehende Friedhofweg wird in die Wendeanlage integriert und so Fläche für das Baugebiet eingespart. Die Linienführung und das Straßengefälle im Schettprofil mit mittiger Rinnenführung werden fortgeführt und der Gehweg verläuft auf der Hangoberseite mit 2,5% Gefälle in Hangrichtung und endet an der Wendeanlage. Die Fahrbahn hat 2,5% Gegengefälle zum Hang. Durch einen Gefällewechsel im Bereich des Wendehammers wird die Fahrbahn an den bestehenden Friedhofsweg mit 12% Steigung angeschlossen.
Die Entwässerung erfolgt im Trennsystem und wird an das bestehende, zwischen den beiden Baugebieten verlaufende Kanalnetz angeschlossen.
Das Regenwassermanagement im Baugebiet Gehren II umfasst folgende drei Punkte:
(1) Vermeidung bzw. Reduktion von Regenwasserabflüssen (durchlässige Oberflächenbefestigung)
(2) Zeitverzögerter, gedrosselter Abfluss von Regenwasser (dezentrale Regenrückhaltung)
(3) Nutzung von Regenwasser (Einsparung von Trinkwasser durch Regenwasser)